Portfolio
Team
Inquiries
Open main menu
Portfolio
Team
Inquiries
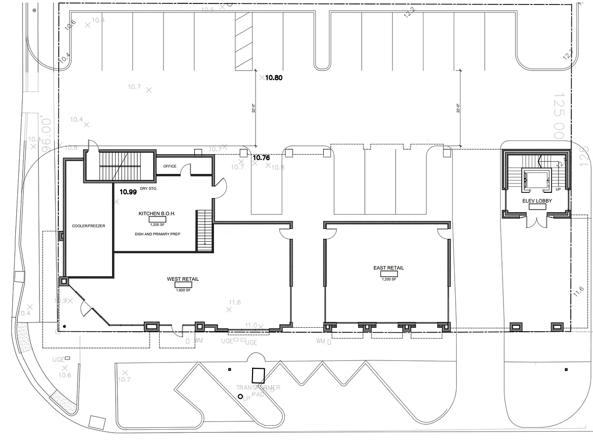
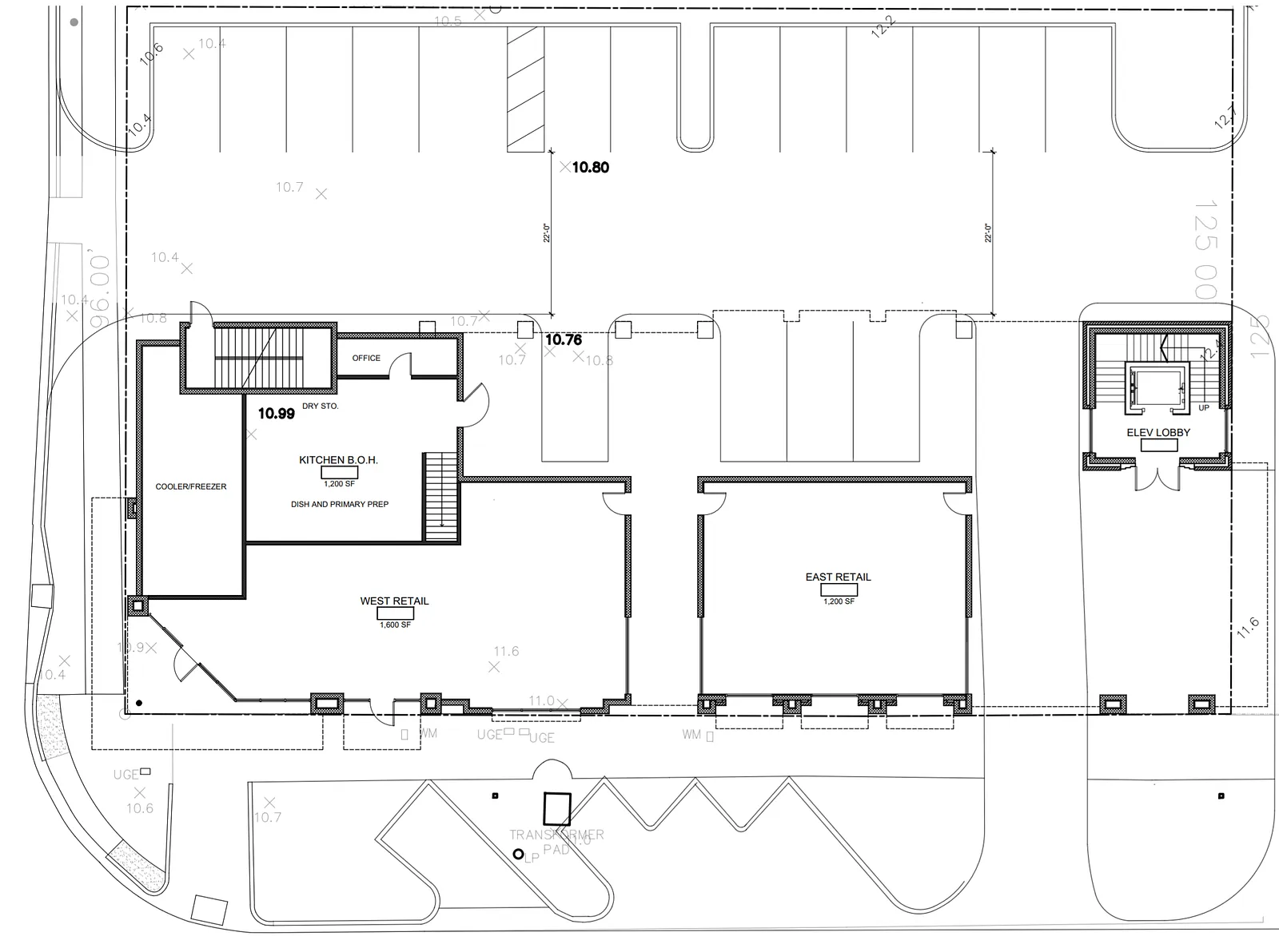
Jax Beach Mixed Use
Creekside Fish Camp
Nocatee Chop House